Steiger
Profil
Team
Jobs
Journal
Concept
Portfolio
Arbeiten
Wohnen
Genesen
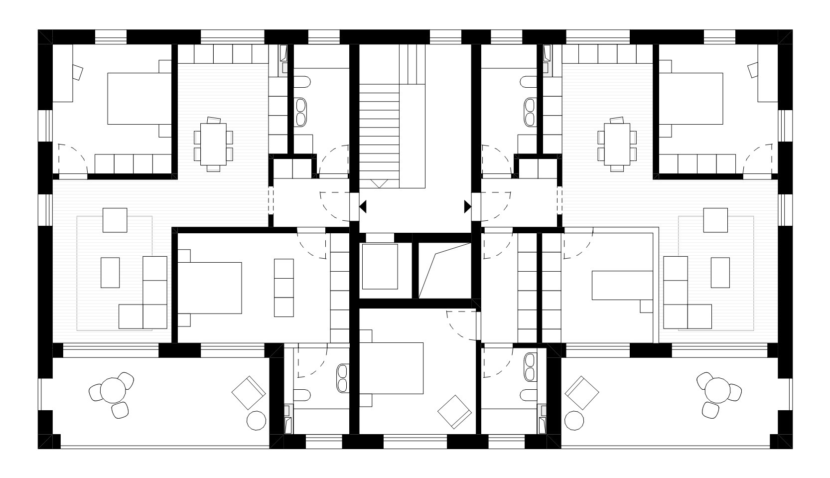
Mehrfamilienhaus Lenzburg LOOONZ
Aufgabenstellung:
Mehrfamilienhaus Lenzburg LOOONZ
Leistungszeitraum:
2023
weitere Projekte